Dec 13 2021
Dec 10 2021
Dec 07 2021
Dec 02 2021
12B/13B, North Building of Pacific Square, No.331, Jiahe Road, Siming District, Xiamen, Fujian, China. 361001
+86-592-5065811
+8615160739809
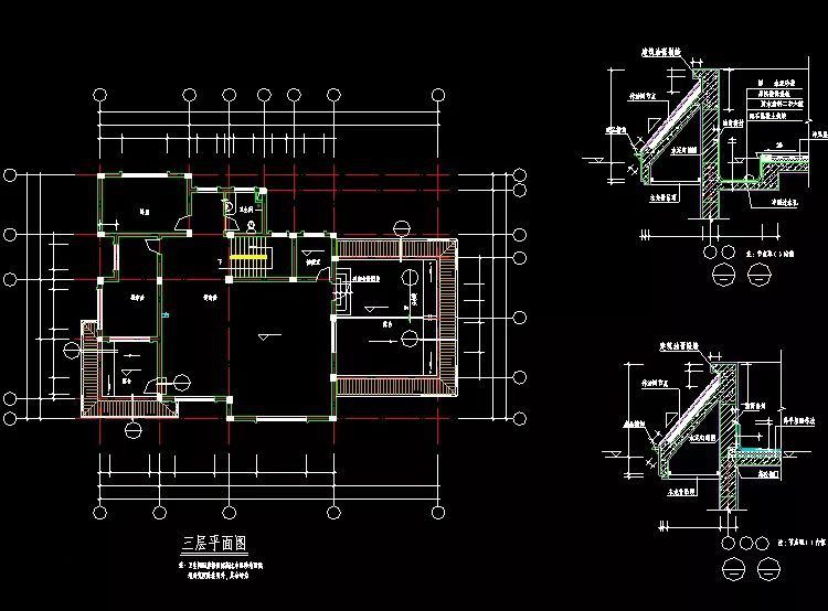
North American style villa design CAD construction drawings, including 12 villa design plans, office villa design drawings, a full set of Baiyun Garden villas, and Ali Sudan villa design.








